Komatsu Model 100, 125 series C and E Loaders & TD-7, TD-8 Series C and E Dozers Chassis Repair Service Manual
Catalog:
Model:
Complete service repair manual for Komatsu Model 100, 125 series C and E Loaders & TD-7, TD-8 Series C and E Dozers Chassis, with all the technical information to maintain, diagnose, repair, and rebuild like professional mechanics.
Komatsu Model 100, 125 series C and E Loaders & TD-7, TD-8 Series C and E Dozers workshop service & repair manual includes:
* Numbered table of contents easy to use so that you can find the information you need fast.
* Detailed sub-steps expand on repair procedure information
* Numbered instructions guide you through every repair procedure step by step.
* Troubleshooting and electrical service procedures are combined with detailed wiring diagrams for ease of use.
* Notes, cautions and warnings throughout each chapter pinpoint critical information.
* Bold figure number help you quickly match illustrations with instructions.
* Detailed illustrations, drawings and photos guide you through every procedure.
* Enlarged inset helps you identify and examine parts in detail.
ISS-1543 - Komatsu International Model 100, 125 series C and E Loaders & TD-7, TD-8 Series C and E Dozers (Chassis) (replace GSS-1426 & supplement).pdf
PRODUCT DETAILS:
Total Pages: 412 pages
File Format: PDF
Language: English
TABLE OF CONTENTS
1 - SPECIFICATIONS
2 - ELECTRICAL SYSTEM
3 - COOLING SYSTEM
4 - ENGINE
5 - HYDRAULIC TORQUE CONVERTER
6 - TRANSMISSION (GEAR DRIVE)
7 - TRANSMISSION (POWER SHIFT)
8 - STEERING SYSTEM
9 - SPROCKET DRIVE
10 - TRACK AND TRACK FRAME ASSEMBLY
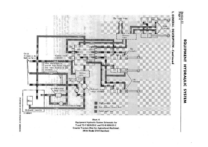
11 - EQUIPMENT HYDRAULIC SYSTEM
12 - ADJUSTMENTS
13 - GEARMATIC WINCH ADAPTER
Komatsu Model 100, 125 series C and E Loaders & TD-7, TD-8 Series C and E Dozers Chassis Repair Service Manual





